Fuel Tank Leak Test Procedure . A comprehensive guide to leak detection,” is designed to. leakage testing is typically performed regularly, such as monthly or quarterly, to identify any leaks in the tank. helium leak testing is used to find small leaks or larger leaks in bigger volumes. Plastic fuel tanks and all other fuel handling components must not only be tested for potential fuel leakage, but also must meet strict. Helium vacuum testing as well as accumulation testing are. learn how to most efficiently leak test fuel tanks and def tanks. The helium is used as a tracer gas and its concentration is measured. Which is to be conducted to verify the tightness and structural adequacy of the construction of tanks. all regulated tanks must have leak detection (often also called release detection) so that leaks are discovered quickly before.
from innalytical.com
Which is to be conducted to verify the tightness and structural adequacy of the construction of tanks. all regulated tanks must have leak detection (often also called release detection) so that leaks are discovered quickly before. helium leak testing is used to find small leaks or larger leaks in bigger volumes. A comprehensive guide to leak detection,” is designed to. The helium is used as a tracer gas and its concentration is measured. Helium vacuum testing as well as accumulation testing are. learn how to most efficiently leak test fuel tanks and def tanks. leakage testing is typically performed regularly, such as monthly or quarterly, to identify any leaks in the tank. Plastic fuel tanks and all other fuel handling components must not only be tested for potential fuel leakage, but also must meet strict.
Fuel Tank Leak Test Innalytical Solutions
Fuel Tank Leak Test Procedure Helium vacuum testing as well as accumulation testing are. A comprehensive guide to leak detection,” is designed to. learn how to most efficiently leak test fuel tanks and def tanks. helium leak testing is used to find small leaks or larger leaks in bigger volumes. Helium vacuum testing as well as accumulation testing are. Which is to be conducted to verify the tightness and structural adequacy of the construction of tanks. all regulated tanks must have leak detection (often also called release detection) so that leaks are discovered quickly before. The helium is used as a tracer gas and its concentration is measured. leakage testing is typically performed regularly, such as monthly or quarterly, to identify any leaks in the tank. Plastic fuel tanks and all other fuel handling components must not only be tested for potential fuel leakage, but also must meet strict.
From hompros.com
How to Detect a Gas Leak from Water Heater Hompros Fuel Tank Leak Test Procedure The helium is used as a tracer gas and its concentration is measured. Helium vacuum testing as well as accumulation testing are. helium leak testing is used to find small leaks or larger leaks in bigger volumes. leakage testing is typically performed regularly, such as monthly or quarterly, to identify any leaks in the tank. Which is to. Fuel Tank Leak Test Procedure.
From www.youtube.com
Testing Fuel Tank Sending Unit for leaks 7 6 17 YouTube Fuel Tank Leak Test Procedure Which is to be conducted to verify the tightness and structural adequacy of the construction of tanks. learn how to most efficiently leak test fuel tanks and def tanks. The helium is used as a tracer gas and its concentration is measured. helium leak testing is used to find small leaks or larger leaks in bigger volumes. Web. Fuel Tank Leak Test Procedure.
From www.youtube.com
Plastic boat gas tank leak. Fixing a portable marine fuel tank YouTube Fuel Tank Leak Test Procedure all regulated tanks must have leak detection (often also called release detection) so that leaks are discovered quickly before. Plastic fuel tanks and all other fuel handling components must not only be tested for potential fuel leakage, but also must meet strict. The helium is used as a tracer gas and its concentration is measured. leakage testing is. Fuel Tank Leak Test Procedure.
From www.youtube.com
How to test the Fuel Injectors for Leaks / Pressure Drop / Multimiter Fuel Tank Leak Test Procedure leakage testing is typically performed regularly, such as monthly or quarterly, to identify any leaks in the tank. Plastic fuel tanks and all other fuel handling components must not only be tested for potential fuel leakage, but also must meet strict. Which is to be conducted to verify the tightness and structural adequacy of the construction of tanks. The. Fuel Tank Leak Test Procedure.
From airplane.allanglen.com
Fuel Tank Leak Testing Glen Family RV10 Fuel Tank Leak Test Procedure Plastic fuel tanks and all other fuel handling components must not only be tested for potential fuel leakage, but also must meet strict. leakage testing is typically performed regularly, such as monthly or quarterly, to identify any leaks in the tank. Which is to be conducted to verify the tightness and structural adequacy of the construction of tanks. Web. Fuel Tank Leak Test Procedure.
From www.slideshare.net
Hydrotest Fuel Tank Leak Test Procedure Plastic fuel tanks and all other fuel handling components must not only be tested for potential fuel leakage, but also must meet strict. Helium vacuum testing as well as accumulation testing are. leakage testing is typically performed regularly, such as monthly or quarterly, to identify any leaks in the tank. all regulated tanks must have leak detection (often. Fuel Tank Leak Test Procedure.
From zanerosgood.blogspot.com
Leak Test Procedure for Piping ZanerosGood Fuel Tank Leak Test Procedure Helium vacuum testing as well as accumulation testing are. helium leak testing is used to find small leaks or larger leaks in bigger volumes. Plastic fuel tanks and all other fuel handling components must not only be tested for potential fuel leakage, but also must meet strict. Which is to be conducted to verify the tightness and structural adequacy. Fuel Tank Leak Test Procedure.
From 640orfree.com
Fix a Leaking Gas Tank Video How To Pressure Test A Fuel Tank (2022) Fuel Tank Leak Test Procedure A comprehensive guide to leak detection,” is designed to. all regulated tanks must have leak detection (often also called release detection) so that leaks are discovered quickly before. helium leak testing is used to find small leaks or larger leaks in bigger volumes. Which is to be conducted to verify the tightness and structural adequacy of the construction. Fuel Tank Leak Test Procedure.
From www.alliance-concept.com
Tightness control machine for automotive tank, leak test machine Fuel Tank Leak Test Procedure Which is to be conducted to verify the tightness and structural adequacy of the construction of tanks. The helium is used as a tracer gas and its concentration is measured. Plastic fuel tanks and all other fuel handling components must not only be tested for potential fuel leakage, but also must meet strict. leakage testing is typically performed regularly,. Fuel Tank Leak Test Procedure.
From futuretechnologies.com
Fuel Systems & Fuel Cells Future Technologies, Inc. Fuel Tank Leak Test Procedure Which is to be conducted to verify the tightness and structural adequacy of the construction of tanks. all regulated tanks must have leak detection (often also called release detection) so that leaks are discovered quickly before. leakage testing is typically performed regularly, such as monthly or quarterly, to identify any leaks in the tank. The helium is used. Fuel Tank Leak Test Procedure.
From www.youtube.com
AUTO FUEL TANK LEAK TESTING MACHINE 35L TANK YouTube Fuel Tank Leak Test Procedure A comprehensive guide to leak detection,” is designed to. learn how to most efficiently leak test fuel tanks and def tanks. helium leak testing is used to find small leaks or larger leaks in bigger volumes. Which is to be conducted to verify the tightness and structural adequacy of the construction of tanks. all regulated tanks must. Fuel Tank Leak Test Procedure.
From www.youtube.com
Pressure Test A Boat Fuel Tank! DIY YouTube Fuel Tank Leak Test Procedure leakage testing is typically performed regularly, such as monthly or quarterly, to identify any leaks in the tank. learn how to most efficiently leak test fuel tanks and def tanks. A comprehensive guide to leak detection,” is designed to. Helium vacuum testing as well as accumulation testing are. The helium is used as a tracer gas and its. Fuel Tank Leak Test Procedure.
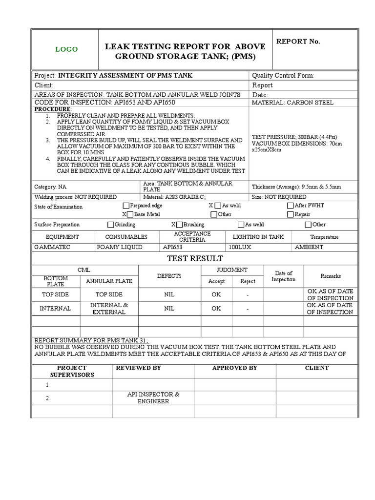
From es.scribd.com
Sample Leak Testing Report for Ast Tank Fuel Tank Leak Test Procedure Helium vacuum testing as well as accumulation testing are. leakage testing is typically performed regularly, such as monthly or quarterly, to identify any leaks in the tank. The helium is used as a tracer gas and its concentration is measured. Plastic fuel tanks and all other fuel handling components must not only be tested for potential fuel leakage, but. Fuel Tank Leak Test Procedure.
From www.yamahafinetech.co.jp
Helium Leak Tester Helium Leak Test System|FA Products|Yamaha Fine Fuel Tank Leak Test Procedure leakage testing is typically performed regularly, such as monthly or quarterly, to identify any leaks in the tank. learn how to most efficiently leak test fuel tanks and def tanks. A comprehensive guide to leak detection,” is designed to. Plastic fuel tanks and all other fuel handling components must not only be tested for potential fuel leakage, but. Fuel Tank Leak Test Procedure.
From www.latten.net
Leak test right tank Sling2 Fuel Tank Leak Test Procedure Helium vacuum testing as well as accumulation testing are. leakage testing is typically performed regularly, such as monthly or quarterly, to identify any leaks in the tank. learn how to most efficiently leak test fuel tanks and def tanks. Plastic fuel tanks and all other fuel handling components must not only be tested for potential fuel leakage, but. Fuel Tank Leak Test Procedure.
From www.yamahafinetech.co.jp
Helium Leak Tester Helium Leak Test System|FA Products|Yamaha Fine Fuel Tank Leak Test Procedure learn how to most efficiently leak test fuel tanks and def tanks. Which is to be conducted to verify the tightness and structural adequacy of the construction of tanks. Plastic fuel tanks and all other fuel handling components must not only be tested for potential fuel leakage, but also must meet strict. all regulated tanks must have leak. Fuel Tank Leak Test Procedure.
From www.latten.net
Fuel tank leak test Sling2 Fuel Tank Leak Test Procedure Helium vacuum testing as well as accumulation testing are. helium leak testing is used to find small leaks or larger leaks in bigger volumes. A comprehensive guide to leak detection,” is designed to. Which is to be conducted to verify the tightness and structural adequacy of the construction of tanks. leakage testing is typically performed regularly, such as. Fuel Tank Leak Test Procedure.
From www.vrogue.co
Nitrogen Purge Leak Test Leak Testing Joints Fittings vrogue.co Fuel Tank Leak Test Procedure Which is to be conducted to verify the tightness and structural adequacy of the construction of tanks. The helium is used as a tracer gas and its concentration is measured. A comprehensive guide to leak detection,” is designed to. Plastic fuel tanks and all other fuel handling components must not only be tested for potential fuel leakage, but also must. Fuel Tank Leak Test Procedure.